
Dowiedz się, jakie rodzaje fundamentów są najlepsze pod drewniany domek letniskowy. Poznaj kluczowe cechy, zalety i wady różnych rozwiązań, aby wybrać optymalny fundament dla Twojej posesji.

Dowiedz się, jakie rodzaje fundamentów są najlepsze pod drewniany domek letniskowy. Poznaj kluczowe cechy, zalety i wady różnych rozwiązań, aby wybrać optymalny fundament dla Twojej posesji.

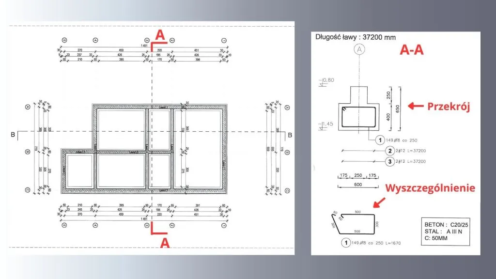
Dowiedz się, jakie wymiary strzemion pod fundament są najlepsze dla Twojego domu. Sprawdź standardowe rozmiary, zasady doboru i zastosowanie w różnych typach budynków.

Szukasz sprawdzonych sposobów na izolację fundamentów? Dowiedz się czym smarować fundamenty, jakie materiały wybrać i jak je prawidłowo zastosować. Kompleksowy przegląd najskuteczniejszych metod zabezpieczenia.

Dowiedz się jak wytyczyć fundamenty pod swój wymarzony dom. Praktyczne wskazówki od geodety, opis metod kołkowych i ław drutowych oraz koszty. Uniknij błędów na tym kluczowym etapie.

Dowiedz się jak zrobić fundament pod dom zgodnie ze sztuką budowlaną. Poznaj szczegółowe etapy, materiały i koszty. Praktyczne wskazówki dla budujących samodzielnie i z ekipą.

Dowiedz się, jak krok po kroku poprawnie zamontować folię kubełkową na fundamentach. Poznaj sprawdzone metody izolacji pionowej, aby chronić dom przed wilgocią i podnieść komfort użytkowania. Wprowadź efektywne rozwiązanie na fundamentach.

Dowiedz się, jaka powinna być głębokość fundamentu pod garaż - porównaj ławy fundamentowe i płytę oraz poznaj czynniki wpływające na wybór odpowiednich wymiarów. Przeczytaj praktyczne porady, aby zapewnić stabilność i trwałość Twojego garażu.

Porównanie zalet i wad fundamentów z bloczków betonowych oraz wylewanych. Wybierz najlepsze rozwiązanie dla swojego projektu budowlanego - szybkość, odporność i izolacja.

Dowiedz się, jak precyzyjnie obliczyć ilość betonu potrzebną na fundamenty. Praktyczny poradnik z przykładowymi wyliczeniami oraz informacjami o dostępnych kalkulatorach i rodzajach betonu najlepszych do budowy fundamentów.

Dowiedz się, jak głęboko posadowić fundament w zależności od strefy klimatycznej i rodzaju gruntu. Poznaj wymagania dla minimalnej głębokości fundamentów oraz najważniejsze czynniki, które należy uwzględnić przy projektowaniu.

Dowiedz się, jak prawidłowo ocieplić fundament styropianem krok po kroku. Poznaj najlepsze metody docieplania, rodzaje materiałów izolacyjnych oraz praktyczne wskazówki, aby zwiększyć efektywność ogrzewania domu.

Pozbądź się problemów z wilgocią w starym domu - sprawdzone sposoby na osuszenie fundamentów. Kompletny przewodnik, obejmujący wszystkie kluczowe etapy, od odkopywania po izolację.

Jak wzmocnić fundamenty? Poznaj 5 sprawdzonych metod naprawy i stabilizacji fundamentów domu. Praktyczne wskazówki, orientacyjne koszty oraz procedura wykonania prac krok po kroku.

Wybierz odpowiedni beton na fundament - B20 czy B25? Sprawdź różnice w wytrzymałości, zastosowaniu i cenie obu klas betonu. Dowiedz się, który najlepiej sprawdzi się w Twoim projekcie.

Dowiedz się ile cementu potrzeba na fundament Twojego domu. Poznaj rodzaje betonów, ich zapotrzebowanie na cement oraz proporcje składników mieszanki betonowej na fundament. Oblicz ilość cementu i innych materiałów niezbędnych do wykonania mocnej konstrukcji.

Szukasz odpowiedniego styropianu do izolacji fundamentów domu? Dowiedz się, jakie są kluczowe różnice między styropianem EPS a XPS i poznaj, który z nich będzie najlepszym wyborem dla Twoich potrzeb.

Dowiedz się, jak obliczyć dokładną ilość dysperbitu potrzebną do hydroizolacji fundamentów. Nasz praktyczny poradnik krok po kroku pomoże Ci skutecznie zabezpieczyć Twój dom przed wilgocią.

Dowiedz się, jak prawidłowo przykleić styropian do fundamentów budynku. Kompletny poradnik krok po kroku z najskuteczniejszymi metodami klejenia, przygotowaniem podłoża i warunkami pracy.

Dowiedz się, jak skutecznie połączyć stary fundament z nowym, zachowując stabilność i bezpieczeństwo konstrukcji. Poznaj sprawdzone metody, przygotuj powierzchnię i zoptymalizuj cały proces budowlany.

Rozmieszczenie strzemiion w fundamentach to kluczowy element konstrukcji. Dowiedz się, jaka jest optymalna odległość pomiędzy strzemieniami, aby zapewnić stabilność budynku. Poznaj standardy, wpływ obciążeń oraz zasady rozmieszczania strzemiion.

Dowiedz się jak zrobić fundament pod ogrodzenie w prosty sposób. Sprawdź wymiary, zbrojenie i betonowanie fundamentu. Zobacz praktyczne wskazówki i przygotuj solidną podstawę dla swojego ogrodzenia.

Poznaj krok po kroku instrukcję prawidłowego wykonania szalunku pod fundament. Dowiedz się o rodzajach szalunków, etapach montażu i znaczeniu ich właściwego zastosowania dla trwałości fundamentów.

Dowiedz się ile drutu na fundament potrzebujesz do swojego domu. Poznaj wzory, kalkulacje i praktyczne wskazówki dotyczące obliczania ilości stali zbrojeniowej w fundamentach.

Dowiedz się jak zrobić fundamenty samemu pod mały dom. Szczegółowe instrukcje, kosztorys oraz porady eksperta. Poznaj sprawdzone metody i uniknij kosztownych błędów podczas budowy.

Poznaj, kiedy fundamenty muszą odstać po zalaniu, aby zapewnić stabilność konstrukcji. Dowiedz się o minimalnym czasie oczekiwania, pełnej wytrzymałości betonu oraz praktycznych wskazówkach.